Skip To Content

1900 E Elms Road , #101

Killeen, TX 76542
  • $2,625
  • STATUS: Active
  • ON SITE: 376 Days
  • MLS #: 561288
UPDATED: 19 min ago
$2,625
  • 0
    BEDS
  • 1.66
    ACRES
  • 0
    BATHS
  • 0
    1/2 BATHS
  • 1,500
    SQFT
  • $2
    $/SQFT
Neighborhood:
Type:
Commercial-Lease
Built:
2007
County:
Area:

School Ratings & Info



© 2025 Central Texas MLS.
Listing courtesy of Lauren Reider-Hallmark of John Reider Properties II, Ltd: (254) 699-8300.

Description

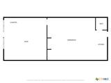
AVAILABLE NOW! This 1,500 sqft finished retail suite was formerly a computer repair store. Elms Run is in a multi-tenant shopping center with great visibility, access and parking. Ideal for Retail, Professional Office, or Medical. Other businesses at Elms Run include; The Hair Lounge Salon, Felicity Nails And Spa, Fiber One, Edward Jones, All City Real Estate, Laurel Ridge and Regional Finance. RENT : Base rent rate is based on a 5 yr lease at $1.75 per sqft. Ex: 1500 sqft x $1.75 per sqft = $2,625.00 per month. The lease is Modified Gross. Landlord pays for the property trash dumpster and water. Tenant's pay all other utilities. Zoning: B-5 Building Square Footage: 18,000 Neighborhood: ELMS RUN COMMERCIAL WEST Lease Type: Modified Gross Lease Also For Sale: No Street Frontage: Elms Road and Elms Run Flooring: Commercial Carpet Restrooms: 1 Offices: Finished Shell



© 2025 Central Texas Multiple Listing Service, Inc. All rights reserved. IDX information is provided exclusively for consumers' personal, non-commercial use and may not be used for any purpose other than to identify prospective properties consumers may be interested in purchasing. Some properties which appear for sale on the website may no longer be available because they are for instance, under contract, sold or are no longer being offered for sale. Information is deemed reliable but is not guaranteed accurate by the MLS or Hacienda Texas Realty. Data last updated: 2025-11-11T11:06:00.41.
www.lopezhouses.com/homes/157334129
Print Image

1900 E Elms Road , #101 Killeen, TX 76542

  • Price: $2,625
  • Status: Active
  • On Site: 376 Days
  • Updated: 19 min ago
  • MLS #: 561288
0
Beds
0
Baths
0
½ Baths
1.66
Acres
1,500
SQFT
$2
$/SQFT
2007
Built
Neighborhood:
Elms Run Comm West
County:
Bell
Area:
Killeen
Property Description
AVAILABLE NOW! This 1,500 sqft finished retail suite was formerly a computer repair store. Elms Run is in a multi-tenant shopping center with great visibility, access and parking. Ideal for Retail, Professional Office, or Medical. Other businesses at Elms Run include; The Hair Lounge Salon, Felicity Nails And Spa, Fiber One, Edward Jones, All City Real Estate, Laurel Ridge and Regional Finance. RENT : Base rent rate is based on a 5 yr lease at $1.75 per sqft. Ex: 1500 sqft x $1.75 per sqft = $2,625.00 per month. The lease is Modified Gross. Landlord pays for the property trash dumpster and water. Tenant's pay all other utilities. Zoning: B-5 Building Square Footage: 18,000 Neighborhood: ELMS RUN COMMERCIAL WEST Lease Type: Modified Gross Lease Also For Sale: No Street Frontage: Elms Road and Elms Run Flooring: Commercial Carpet Restrooms: 1 Offices: Finished Shell
Exterior Features

Construction Materials Brick Stucco Fencing None Foundation Details Slab Roof Flat View None View YN No

Interior Features

Cooling Central Air Electric Cooling YN Yes Flooring Concrete Heating Central Electric Heating YN Yes Interior Features See Remarks Levels One

Property Features

Community Features Curbs Property Subtype Office Road Frontage Type City Street Sewer Public Sewer Water Source Public Zoning B-3



© 2025 Central Texas MLS.
Listing courtesy of Lauren Reider-Hallmark of John Reider Properties II, Ltd: (254) 699-8300.



© 2025 Central Texas Multiple Listing Service, Inc. All rights reserved. IDX information is provided exclusively for consumers' personal, non-commercial use and may not be used for any purpose other than to identify prospective properties consumers may be interested in purchasing. Some properties which appear for sale on the website may no longer be available because they are for instance, under contract, sold or are no longer being offered for sale. Information is deemed reliable but is not guaranteed accurate by the MLS or Hacienda Texas Realty. Data last updated: 2025-11-11T11:06:00.41.
 
https://bt-photos.global.ssl.fastly.net/centraltx/orig_boomver_1_561288-2.jpg https://bt-photos.global.ssl.fastly.net/centraltx/orig_boomver_1_561288-2.jpg https://bt-photos.global.ssl.fastly.net/centraltx/orig_boomver_1_561288-2.jpg
Logo
Hacienda Texas Realty
211 E Ave D
Killeen TX, 76541


© 2025 Central Texas MLS.
Listing courtesy of Lauren Reider-Hallmark of John Reider Properties II, Ltd: (254) 699-8300.