Skip To Content

5504 Bunny Trail , #206

Killeen, TX 76549
  • $1,770
  • STATUS: Active
  • ON SITE: 26 Days
  • MLS #: 600346
$1,770
  • 0
    BEDS
  • 1.28
    ACRES
  • 0
    BATHS
  • 0
    1/2 BATHS
  • 13,550
    SQFT
  • $0
    $/SQFT
Neighborhood:
Type:
Commercial-Lease
Built:
2013
County:
Area:

School Ratings & Info



© 2026 Central Texas MLS.
Listing courtesy of Barry Hinshaw of John Reider Properties II, Ltd: (254) 699-8300.

Description

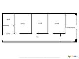
LOCATION : Corner of Bunny Trail and John Helen Dr. Near to the Super Walmart. Surrounding businesses include Texas A&M University, Wal-Mart, CVS & Haynes Elementary. DESCRIPTION : AVAILABLE NOW: This sharp 1,000+/ square foot professional office has a reception area, three offices, an ada restroom, and a small area for a refrigerator, microwave or copier machine. Finishes include drop ceiling, LED lighting, vinyl plank flooring with cove base floor trim, and textured and painted sheetrock walls with door and wood trim. The building fascia and property pylon sign are available for tenant signage. Other businesses include; hair salon, donut shop, clothing store, formal dress shop, convenience store and child care. RENT: Rent is based on $1.35 psf per mo base rent + $0.42 psf per mo NNN rent or $1,770.00 per mo total rent.



© 2026 Central Texas Multiple Listing Service, Inc. All rights reserved. IDX information is provided exclusively for consumers' personal, non-commercial use and may not be used for any purpose other than to identify prospective properties consumers may be interested in purchasing. Some properties which appear for sale on the website may no longer be available because they are for instance, under contract, sold or are no longer being offered for sale. Information is deemed reliable but is not guaranteed accurate by the MLS or Hacienda Texas Realty. Data last updated: 2026-01-15T00:05:57.71.
www.lopezhouses.com/homes/171505572
Print Image

5504 Bunny Trail , #206 Killeen, TX 76549

  • Price: $1,770
  • Status: Active
  • On Site: 26 Days
  • MLS #: 600346
0
Beds
0
Baths
0
½ Baths
1.28
Acres
13,550
SQFT
$0
$/SQFT
2013
Built
Neighborhood:
Purser Crossing Ph Four
County:
Bell
Area:
Killeen
Property Description
LOCATION : Corner of Bunny Trail and John Helen Dr. Near to the Super Walmart. Surrounding businesses include Texas A&M University, Wal-Mart, CVS & Haynes Elementary. DESCRIPTION : AVAILABLE NOW: This sharp 1,000+/ square foot professional office has a reception area, three offices, an ada restroom, and a small area for a refrigerator, microwave or copier machine. Finishes include drop ceiling, LED lighting, vinyl plank flooring with cove base floor trim, and textured and painted sheetrock walls with door and wood trim. The building fascia and property pylon sign are available for tenant signage. Other businesses include; hair salon, donut shop, clothing store, formal dress shop, convenience store and child care. RENT: Rent is based on $1.35 psf per mo base rent + $0.42 psf per mo NNN rent or $1,770.00 per mo total rent.
Exterior Features

Construction Materials Stone Veneer Stucco Fencing Back Yard Foundation Details Slab View None View YN No

Interior Features

Cooling 1 Unit Cooling YN Yes Flooring Vinyl Heating YN Yes Levels One

Property Features

Property Subtype Commercial Road Frontage Type City Street Road Surface Type Asphalt Sewer Public Sewer Water Source Public Zoning B5



© 2026 Central Texas MLS.
Listing courtesy of Barry Hinshaw of John Reider Properties II, Ltd: (254) 699-8300.



© 2026 Central Texas Multiple Listing Service, Inc. All rights reserved. IDX information is provided exclusively for consumers' personal, non-commercial use and may not be used for any purpose other than to identify prospective properties consumers may be interested in purchasing. Some properties which appear for sale on the website may no longer be available because they are for instance, under contract, sold or are no longer being offered for sale. Information is deemed reliable but is not guaranteed accurate by the MLS or Hacienda Texas Realty. Data last updated: 2026-01-15T00:05:57.71.
 
https://bt-photos.global.ssl.fastly.net/centraltx/orig_boomver_1_600346-2.jpg https://bt-photos.global.ssl.fastly.net/centraltx/orig_boomver_1_600346-2.jpg https://bt-photos.global.ssl.fastly.net/centraltx/orig_boomver_1_600346-2.jpg
Logo
Hacienda Texas Realty
211 E Ave D
Killeen TX, 76541


© 2026 Central Texas MLS.
Listing courtesy of Barry Hinshaw of John Reider Properties II, Ltd: (254) 699-8300.